Обяви За нас Контакти
Продава 3-СТАЕН
град София, Кръстова вада
270 360 €
528 778.20 лв.

(2 527 €, 4 942.38 лв./m2)
Цената е без ДДС
История на цената
Публикувана в 11:20 на 26 януари, 2026 год.
Обявата е посетена 553 пъти.
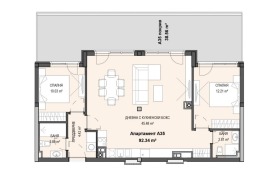
Площ:
107 m2
Етаж:
6-ти от 6
Газ:
ДА
Строителство:
Тухла, Ще бъде въведен в експлоатация 2027 г.

Описание на имота:


Представяме на вашето внимание един нестандартен и изключителен тристаен апартамент, който категорично се отличава от масовите предложения за жилище с две спални.

Имотът е разположен в кв. Кръстова вада, в непосредствена близост до бул. Черни връх, като същевременно се намира извън първа линия, осигурявайки тиха и спокойна жилищна среда.

Основният акцент на апартамента е впечатляващата дневна зона с площ над 45 кв.м, изпълнена със светлина и простор, която естествено води към изумителна панорамна тераса с открита гледка към Витоша планина пространство, създадено за отдих, срещи и пълноценен градски комфорт.

Разпределение:
-просторна дневна с кухненски бокс
-две малки, но компактни спални
-два санитарни възела
-покривна тераса с площ близо 40 кв.м, с излаз от всички помещения;

Апартаментът е част от две модерни самостоятелни сгради, разположени в общ парцел с богато озеленено дворно пространство, зони за отдих и детска площадка.
Сградите не са с концепция на затворен комплекс и не се обвързват с договор за управление и поддръжка.

Паркирането е решено изцяло подземно на две нива, с възможност за избор между единичен или двоен гараж, както и паркоместа на по-достъпна цена.

Отопление: газ с изградено подово отопление, както и изводи за климатици.
Етап: Пред АКТ 14 / АКТ 16 - 2027г.
Строител и инвеститор с изрядна репутация!

0882 935 929
Особености
Тухла
С преход
Асансьор
С гараж
С паркинг
Видео наблюдение
Контрол на достъпа
За контакт:
0882935929
Агенция:
НОВЕ ХОУМ
0882935929
Медал за прослужено време
В imot.bg от 2021 г.
novehome.imot.bg
Адрес:
област София, гр. София, Кв.Стрелбище, Ул Орехова гора 2-4
ИЗПРАТИ ЗАПИТВАНЕ
ИЗПРАТИ ЗАПИТВАНЕТО

Продава 3-СТАЕН
град София, Кръстова вада
Обява: 1c176941920840322

270 360 €
528 778.20 лв.
История на цената
(2 527 €, 4 942.38 лв./m2)

Цената е без ДДС
ЗАПАЗИ ОБЯВАТА

Местоположение: град София, Кръстова вада

Допълнителни данни за имотите в района и сравнение с други райони

Покажи

Период

и 3 месеца

* Средните цени са определени чрез медианна стойност